تصميم شركة في الرياض في السعودية تضم عدد من المكاتب|التصميم الداخلي للمكاتب
تصميم شركة في الرياض في السعودية تضم عدد من المكاتب Modern style
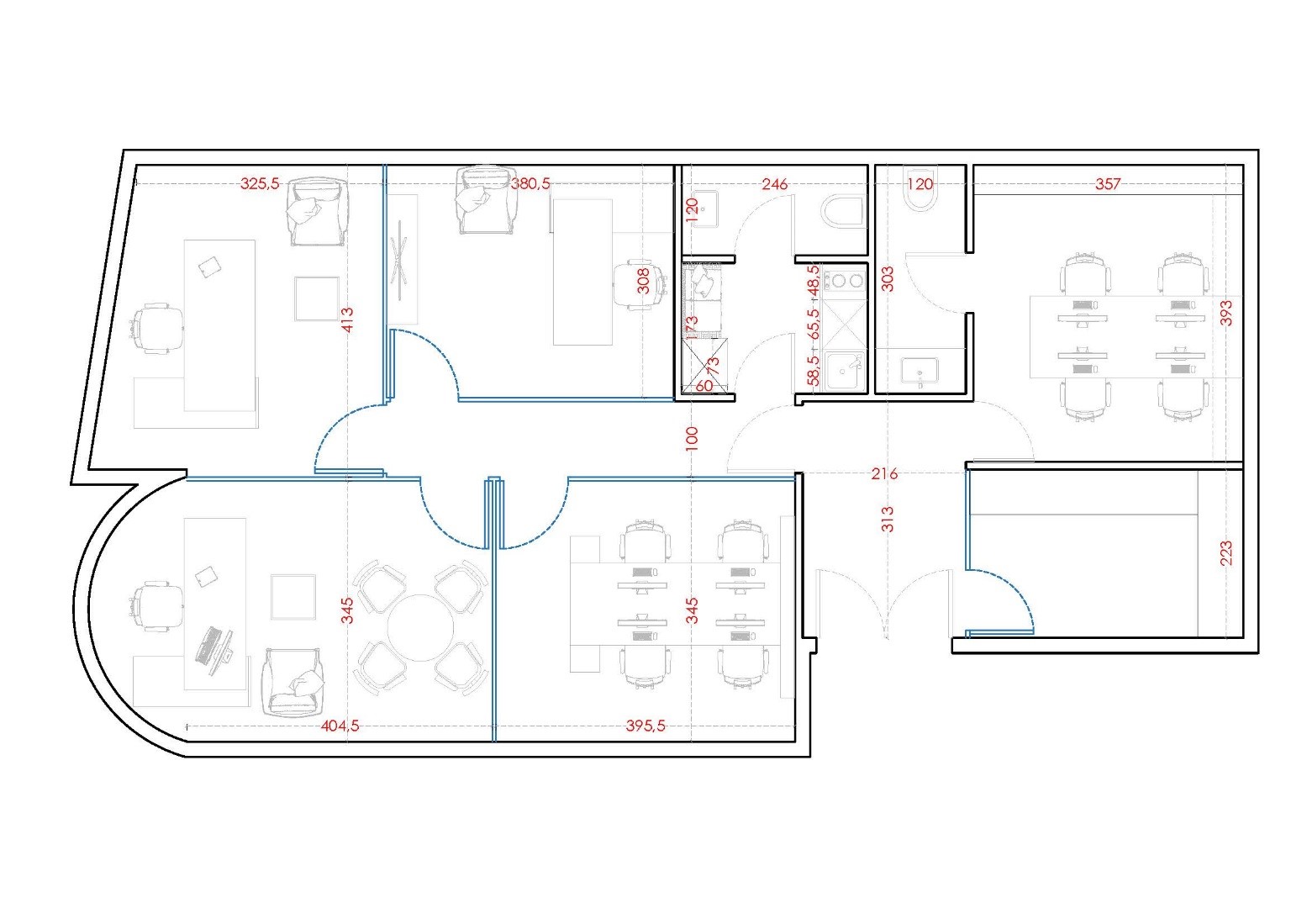
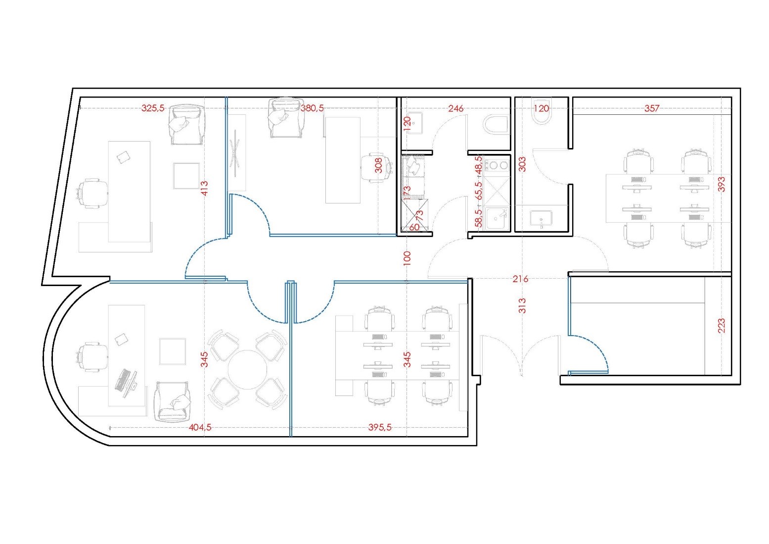
تم في البداية التنسيق مع العميل من أجل الحصول على أفضل تقسيم للفراغ حسب الحاجة و الطلب.
اعتماد الألوان بناء على الهوية البصرية الخاصة بالشركة.
فراغات يفصل بينها قواطع زجاجية تحافظ على الشفافية و هي من مبادئ تعامل الشركة مع الزبون.
رسم المخططات التنفيذية الخاصة بالفرش و الأسقف كاملة لضمان التنفيذ حسب التصميم.













